Дޮ‰ïŽÐŸŒšƒz[ƒ€@¹—¬ŒS“ú‚’¬•xì¼4’š–Ú1”Ô2-101†@‡„y”„”ƒz01456-2-1974y’À‘Ýz090-2696-8883 i¦—v—ˆ“X—\–ñj

Œ³‚̃y[ƒW‚Ö–ß‚é

•¨Œî•ñ

•¨Œ‰æ‘œ

ƒJƒeƒSƒŠ‘݈êŒËŒš •¨ŒIDS-4
•¨Œ–¼“Œ2’š–Ú1-7ŽØ‰ÆiƒLƒƒƒ“ƒZƒ‹‘Ò‚¿j
’À—¿95,000‰~
‹¤‰v”ï

|

э܈

|

’‡‰î—¿1ƒ–ŒŽ{Á”ïÅ Œ —˜‹à1ƒ–ŒŽ
ŠÝ’n–kŠC“¹¹—¬ŒS“ú‚’¬•x쓌2’š–Ú1-7
’n}‡‚

|

ŠwZ‹æ•x쬊wZE•xì’†ŠwZ
’z”Nº˜a63”N@Š®¬
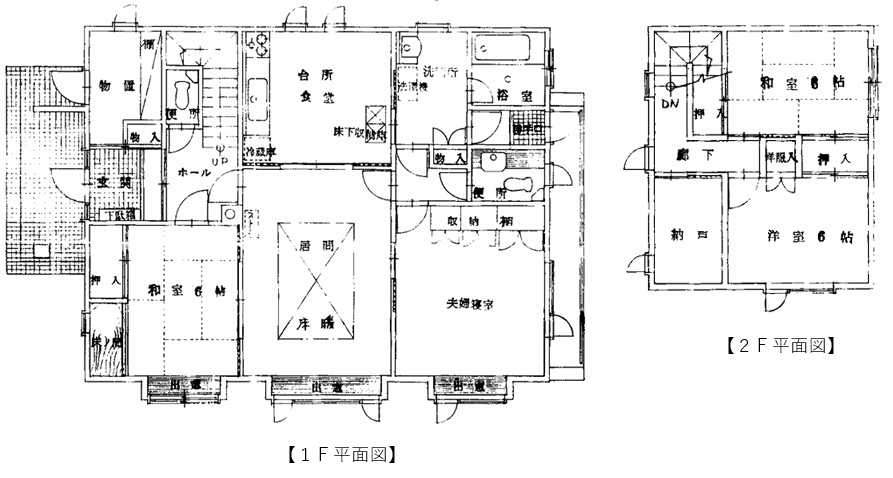
ŠÔŽæ‚èE\‘¢‹ŠÔ11’Ÿ~—mŽº9’Ÿ~˜aŽº6’Ÿ~—mŽº6’Ÿ~˜aŽº6’Ÿ@–Ø‘¢Ý—ˆ2ŠKŒš
ŠÔŽæ4LDK
…“¹ŽÀ”ï
ƒKƒXƒvƒƒpƒ“ ƒgƒCƒŒ…ô
Ý”õƒCƒ“ƒ^[ƒzƒ“ ƒVƒXƒeƒ€ƒLƒbƒ`ƒ“ —ŽºƒVƒƒƒ[ ‰Œ“ËŽ®“”–û’g–[ @ô–Ê‘ä ‹‹“’i“”–ûƒ{ƒCƒ‰[jÆ–¾Ší‹ï‚s‚u‰ñü “d˜b‰ñü



}–ÊEŒö}

Žü•Ó’n}

Šg‘剿‘œ‚ðŒ©‚é


ƒpƒXƒ[ƒhF
Powered by KOMONET