Дޮ‰ïŽÐŸŒšƒz[ƒ€@¹—¬ŒS“ú‚’¬•xì¼4’š–Ú1”Ô2-101†@‡„y”„”ƒz01456-2-1974y’À‘Ýz090-2696-8883 i¦—v—ˆ“X—\–ñj

Œ³‚̃y[ƒW‚Ö–ß‚é

•¨Œî•ñ

•¨Œ‰æ‘œ

ƒJƒeƒSƒŠ‘݃Aƒp[ƒg“™ •¨ŒID3D-8
•¨Œ–¼“ì5’š–Ú11-8i–žŽºj
’À—¿75,000‰~
‹¤‰v”ï

|

—ç‹à75,000‰~
’‡‰î—¿1ƒ–ŒŽ{Á”ïÅ Œ —˜‹à1ƒ–ŒŽ
ŠÝ’n–kŠC“¹¹—¬ŒS“ú‚’¬•xì“ì5’š–Ú11-8
’n}‡‚

|

ŠwZ‹æ•x쬊wZE•xì’†ŠwZ
’z”N—ߘa6”N
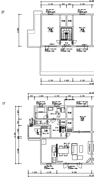
ê—L–ÊÏ65.4
ŠÔŽæ‚èE\‘¢3LDK@2ŠKŒš
ŠÔŽæ3LDK
…“¹ŽÀ”ï
ƒKƒX

|

ƒgƒCƒŒ…ô
Ý”õΖû’g–[‹@iƒŠ[ƒXŒŽŠz1‘ä‚ɂ‚«1,000‰~jAΖû‹‹“’ŠíiƒŠ[ƒXŒŽŠz1,000‰~jAƒGƒAƒRƒ“iƒŠ[ƒXŒŽŠz1,000‰~jAIHƒNƒbƒLƒ“ƒOƒq[ƒ^[A—ŽºƒVƒƒƒ[•tiƒgƒCƒŒ•ÊjAÆ–¾Ší‹ïAƒVƒƒƒ“ƒv[ƒhƒŒƒbƒT[A‚s‚u‰ñüA“d˜b‰ñüA‰·…’g–[•ÖÀ



}–ÊEŒö}

Žü•Ó’n}

Šg‘剿‘œ‚ðŒ©‚é

Šg‘剿‘œ‚ðŒ©‚é


ƒpƒXƒ[ƒhF
Powered by KOMONET